狭山市富士見2丁目 新築戸建 全2棟 2号棟

3,698万円

埼玉県狭山市富士見2丁目6134-1

西武新宿線「狭山市」駅徒歩18分

価格
3,698万円
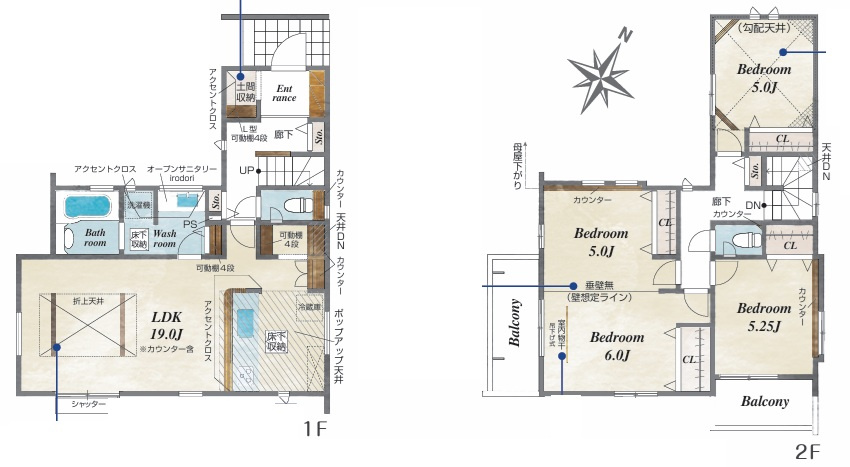
間取り/建物面積
3LDK/103.38㎡
所在地
埼玉県狭山市富士見2丁目6134-1
築年
2025年10月(新築)
駐車
有(2台)
交通

西武新宿線狭山市」駅 徒歩18分

狭山市富士見2丁目 新築戸建 全2棟 2号棟の基本情報

物件名
狭山市富士見2丁目 新築戸建 全2棟 2号棟
価格
3,698万円
建物面積
103.38㎡
土地面積
44.95坪(148.62㎡)
築年月
2025年10月(新築)
総戸数
2戸
所在地
埼玉県狭山市富士見2丁目6134-1
交通

西武新宿線狭山市」駅 徒歩18分

狭山市富士見2丁目 新築戸建 全2棟 2号棟の詳細情報

設備条件
  • 建設住宅性能評価書付
  • 駐車2台可
  • 耐震構造
設備(その他)
    -
駐車場/月額
有(2台)/0円
土地権利
所有権
国土法届出
不要
用途地域
第一種中高層住居専用
取引態様
仲介
引渡し
2025年11月下旬
備考
家から338mの場所に狭山郵便局があります。制震で構造がしっかりしてて、建物重量を支えも頑丈です。築2年以内の物件ですので、外観もキレイです。戸建て物件をご検討なら、コチラの新築の物件をご覧ください。狭山市にある一戸建てのお問い合わせは、当社が承っております。マイホームの購入を検討しているお客様のサポートを致します。

狭山市富士見2丁目 新築戸建 全2棟 2号棟のコメント(おすすめポイント)

狭山市富士見2丁目 新築戸建 全2棟 2号棟:西武新宿線狭山市駅にも近くて便利。徒歩5分のところに狭山郵便局があります。築2年以内の物件ですので、外観もキレイです。地震のエネルギーを吸収する、制震構造になっています。夢のマイホームを狭山市の西武新宿線狭山市付近で探しましょう。きっと素敵な一戸建てが見つかりますので、まずは当社までお問い合わせ下さい。

狭山市富士見2丁目 新築戸建 全2棟 2号棟で募集中の物件

  1. 2号棟

    31.27坪 (103.38㎡)

    3,698万円(118.26万円/坪)

周辺施設

  • ローソン 狭山富士見二丁目店の画像

    コンビニエンスストア

    ローソン 狭山富士見二丁目店

    187m(3分)

  • 狭山郵便局の画像

    郵便局

    狭山郵便局

    338m(5分)

  • 狭山市立富士見小学校の画像

    小学校

    狭山市立富士見小学校

    699m(9分)

  • 風の子保育園の画像

    保育園

    風の子保育園

    817m(11分)

  • みつばさ愛育園の画像

    幼稚園

    みつばさ愛育園

    820m(11分)

  • 狭山厚生病院の画像

    内科

    狭山厚生病院

    1071m(14分)

  • 狭山市 富士見公民館の画像

    公民館

    狭山市 富士見公民館

    1111m(14分)

  • ベルク 狭山入間川店の画像

    スーパー

    ベルク 狭山入間川店

    1154m(15分)

近隣の物件

  1. 狭山市広瀬台1丁目

    4LDK (94.76㎡)

    2,470万円

  2. 狭山市柏原

    4LDK (100.61㎡)

    2,899万円

  3. 狭山市大字水野

    3LDK (81.15㎡)

    2,790万円

  4. 狭山市中央3丁目

    4LDK (87.35㎡)

    3,090万円

狭山市富士見2丁目 新築戸建 全2棟 2号棟

お気軽にお問い合わせください

LINEからお問い合わせ 無料お問い合わせ

株式会社ハウジングトラスト

04-2939-4877

9:30~18:00

(休:火曜日・水曜日)