CRADLE GARDEN 所沢市久米第21 全3棟

3,890万円~4,190万円

埼玉県所沢市大字久米1616-4

西武池袋線「所沢」駅徒歩18分

価格
3,890万円~4,190万円
間取り/建物面積
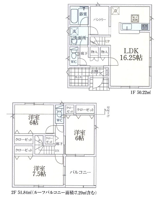
3LDK~3LDK/100.23㎡~102.44㎡
所在地
埼玉県所沢市大字久米1616-4
築年
2026年1月(新築)
駐車
有(2台)
交通

西武池袋線所沢」駅 徒歩18分

CRADLE GARDEN 所沢市久米第21 全3棟の基本情報

物件名
CRADLE GARDEN 所沢市久米第21 全3棟
価格
3,890万円~4,190万円
建物面積
100.23㎡~102.44㎡
土地面積
43.28坪~53.97坪(143.09㎡~178.44㎡)
築年月
2026年1月(新築)
総戸数
3戸
所在地
埼玉県所沢市大字久米1616-4
交通

西武池袋線所沢」駅 徒歩18分

CRADLE GARDEN 所沢市久米第21 全3棟の詳細情報

設備条件
  • 駐車2台可
設備(その他)
    -
駐車場/月額
有(2台)/0円
土地権利
所有権
国土法届出
不要
用途地域
第一種低層住居専用
取引態様
仲介
引渡し
相談
備考
ぜひ一度見ていただきたい、「CRADLE GARDEN 所沢市久米第21 全3棟」です。一生に一度のマイホーム探しは、ぜひ新築戸建てで。築2年以内の築浅物件です。不動産をお探しなら、当社をご用命ください。あなたのこだわりの条件に合った不動産がきっと見つかります。ぜひご検討くださいませ。

CRADLE GARDEN 所沢市久米第21 全3棟のコメント(おすすめポイント)

築2年以内の物件ですので、外観もキレイです。戸建て物件をご検討なら、コチラの新築の物件をご覧ください。不動産を求める上で、何かご不明な点などございましたら、お気軽にご質問ください。不動産購入で失敗をしないためにも、気になることは全て解決しておきましょう。

CRADLE GARDEN 所沢市久米第21 全3棟で募集中の物件

  1. 3号棟

    30.31坪 (100.23㎡)

    3,890万円(128.34万円/坪)

  2. 2号棟

    30.87坪 (102.06㎡)

    4,090万円(132.49万円/坪)

  3. 1号棟

    30.98坪 (102.44㎡)

    4,190万円(135.25万円/坪)

周辺施設

  • ファミリーマート 所沢松が丘店の画像

    コンビニエンスストア

    ファミリーマート 所沢松が丘店

    237m(3分)

  • 久米犬猫病院の画像

    動物病院

    久米犬猫病院

    527m(7分)

  • 精心幼稚園の画像

    幼稚園

    精心幼稚園

    643m(9分)

  • よしだ歯科クリニックの画像

    歯科

    よしだ歯科クリニック

    861m(11分)

  • 徳島内科クリニックの画像

    内科

    徳島内科クリニック

    861m(11分)

  • スギ薬局 東村山秋津店の画像

    ドラッグストア

    スギ薬局 東村山秋津店

    941m(12分)

  • さくらんぼ保育室の画像

    保育園

    さくらんぼ保育室

    1076m(14分)

  • 所沢市立南小学校の画像

    小学校

    所沢市立南小学校

    1282m(17分)

  • 所沢市立南陵中学校の画像

    中学校

    所沢市立南陵中学校

    1321m(17分)

  • 所沢市立所沢図書館吾妻分館の画像

    図書館

    所沢市立所沢図書館吾妻分館

    1718m(22分)

近隣の物件

  1. 所沢市東狭山ケ丘1丁目

    4LDK (104.77㎡)

    4,249万円

  2. 所沢市林3丁目

    4LDK (86.53㎡)

    2,990万円

  3. 所沢市大字久米

    4LDK (101.96㎡)

    4,899万円

  4. 所沢市北所沢町

    4LDK (86.94㎡)

    4,580万円

よく見られている物件

  1. 所沢市北所沢町

    4LDK (99.36㎡)

    4,499万円

  2. 所沢市美原町1丁目

    4LDK (115.65㎡)

    4,080万円

  3. 所沢市北所沢町

    4LDK (96.88㎡)

    4,199万円

  4. 清瀬市野塩5丁目

    4LDK (105.57㎡)

    5,299万円

CRADLE GARDEN 所沢市久米第21 全3棟

お気軽にお問い合わせください

LINEからお問い合わせ 無料お問い合わせ

株式会社ハウジングトラスト

04-2939-4877

9:30~18:00

(休:火曜日・水曜日)